PRE VENTA DE CASA EN RES. JARAGUA
DETALLE DEL BIEN INMUEBLE
Tipo de inmueble:
Casa en venta
Estado del inmueble:
En construcción
País:
Honduras
Departamento:
Cortés
Ciudad:
San Pedro Sula
Zona:
Norte
Barrio:
RESIDENCIAL JARAGUA
Área de construcción:
270 m2
Nº de habitaciones:
4
Nº de baños:
3
Nº de medio baños:
1
Nº de plantas:
2
Nº de parqueaderos:
2
Comparta en sus redes sociales
Descripción de la propiedad
preventa en Residencial Jaragua a un precio de $315,000.00
con medidas de 750 varas y 270 mts

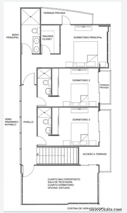
De dos plantas, distribuidas así;
primera planta
sala
comedor
cocina
cuarto de servicio
closet de blancos
área de lavandería
porch

Planta alta
diseñado tres dormitorios cada uno con su baño
un espacio para una cuarta habitacion, estudio, sala, según gusto o
necesidad del cliente
Características Adicionales
✔ Terraza
✔ Cuarto de Servicio
✔ Baño de servicio
✔ Sala de estar
✔ Closet
✔ Energía eléctrica
✔ Agua Potable
✔ Alcantarillado
✔ Seguridad privada
✔ Conjunto cerrado
✔ Vista privilegiada
Fotografías del Inmueble
PRE VENTA DE CASA EN RES. JARAGUA
PROPIEDAD VENDIDA

Este página se mantiene únicamente por estadísticas, por favor busque en nuestro sitio web las propiedades que se encuentran vigentes.

Disponemos de una gran variedad de oferta de propiedades de bienes raíces en San Pedro Sula. Utilice nuestra herramienta de búsqueda avanzada para encontrar lo que necesite o anuncie completamente GRATIS sus propiedades de bienes raices en nuestro Portal Inmobiliario Gratuito.

Las mejores fotografías serán publicadas en nuestro muro de fachadas de casas modernas.