Casa en construcción Vía Salitre Buena ubicación
DETALLE DEL BIEN INMUEBLE
Tipo de inmueble:
Casa en venta
Estado del inmueble:
En construcción
Precio:
USD 150.000,00 dólares
País:
Ecuador
Provincia:
Guayas
Ciudad:
Daule
Zona:
Centro
Barrio:
Vía a Salitre E 486
Área de construcción:
149 m2
Año de construcción:
1
Nº de habitaciones:
3
Nº de baños:
3
Nº de plantas:
2
Nº de parqueaderos:
1
Comparta en sus redes sociales
Descripción de la propiedad
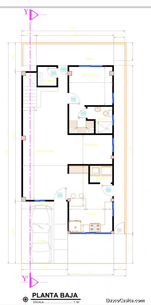
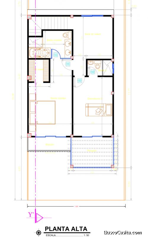
Se vende casa en Vía Salitre buena ubicación cerca de Plaza Tía Central, próximo a Plaza Vermont y el C-C. El Dorado. La casa dispone: Planta Baja Sala comedor un sólo ambiente Cocina amplia tipo americana Dormitorio con su respectivo baño y walk-in closet Patio Planta alta Dormitorio master Walk-in closet master Baño master Dormitorio secundario Baño secundario y closet sala de estar o estudio La casa tiene un avance de construcción del 85% y el precio incluye: Split en dormitorios master y secundarios Mamparas de vidrio en baño master y secundarios Bomba y tanque de presión Calentador de agua Cisterna Tina Con jets para hidromasaje en el baño master Lámparas decorativas en sala y escalera Pérgola decorativa en dormitorio secundario en planta alta Anaqueles altos y bajos en cocina acabado high gloss con color a elección Puertas de closets en dormitorios Equipo en instalación para equipos de lavadora y secadora de ropa Instalación para domótica Para Mayor informacion por mensaje i WhatsApp 593997193237 #casasamborondon #casadaule #viasalitre #VendoViaSalitre #casaenventadaule #Urbanizaciones #casaenventasalitre #vendocasadaule casabonitadaule
Características Adicionales
✔ Sala de estar
✔ Closet
✔ Calefón
✔ Energía eléctrica
✔ Agua Potable
✔ Alcantarillado
✔ Línea telefónica
✔ Seguridad privada
✔ Aire acondicionado
✔ Televisión por cable
✔ Parqueadero de visitas
✔ Jardín
✔ Conjunto cerrado
✔ Cerca eléctrica
✔ Control de accesos
✔ Canchas Deportivas
✔ Juegos para niños
✔ Cisterna
Fotografías del Inmueble
Casa en construcción Vía Salitre Buena ubicación
Enviar mensaje al vendedor
Sus datos personales no se publicarán, únicamente el vendedor los recibirá y se comunicará con usted directamente.
Nombre:
Email:
Teléfono:
Mensaje:
Reportar esta propiedad
¿Esta propiedad está vendida, alquilada, no es un anuncio inmobiliario o existe algún otro tipo de problema con la publicación? Repórtela por favor:
Descripción del problema:

Disponemos de una gran variedad de oferta de propiedades de bienes raíces en Daule. Utilice nuestra herramienta de búsqueda avanzada para encontrar lo que necesite o anuncie completamente GRATIS sus propiedades de bienes raices en nuestro Portal Inmobiliario Gratuito.

Las mejores fotografías serán publicadas en nuestro muro de fachadas de casas modernas.