CASA RENTERA EN VENTA
DETALLE DEL BIEN INMUEBLE
Tipo de inmueble:
Casa en venta
Estado del inmueble:
Usado
Precio:
USD 1,00 dólares
País:
Ecuador
Provincia:
Azuay
Ciudad:
Cuenca
Zona:
Centro
Barrio:
Bellavista
Área del terreno:
14.284,0 m2
Área de construcción:
36212 m2
Nº de habitaciones:
6
Nº de baños:
4
Nº de plantas:
3
Comparta en sus redes sociales
Descripción de la propiedad
Ubicación: Rafael M Arízaga y Miguel Vélez ( a pocos minutos del Centro Histórico de Cuenca)

Área de Terreno: 142.84 m2- Área de Construcción: 365.12m2

Área de ampliación 3er piso: 124.32m2

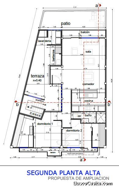
Casa de dos plantas con sótano y tercer piso con planos aprobados por el GAD Municipal Cuenca, La planta baja departamento 1 consta de: dos dormitorios, sala, comedor, cocina, baño y patio el mismo que se conecta con area de sótano conformada por dos cuartos amplios, cuarto privado con baño privado independiente del departamento 1; la segunda planta departamento 2 conta de: 3 dormitorios amplios, 2 baños compartidos, sala, comedor, cocina y área de lavado, la tercera plano de departamento 3 esta conformada por una terraza accesible con proyección a la construcción de un nuevo departamento el mismo que costa de: 2 dormitorios, sala, comedor, cocina, baño con área de lavado compartida y zona de asados, segun planos aprobados por la Dirección de Centro Historico del GAD Municipal de Cuenca
Características Adicionales
✔ Energía eléctrica
✔ Agua Potable
✔ Alcantarillado
Fotografías del Inmueble
CASA RENTERA EN VENTA
Enviar mensaje al vendedor
Sus datos personales no se publicarán, únicamente el vendedor los recibirá y se comunicará con usted directamente.
Nombre:
Email:
Teléfono:
Mensaje:
Reportar esta propiedad
¿Esta propiedad está vendida, alquilada, no es un anuncio inmobiliario o existe algún otro tipo de problema con la publicación? Repórtela por favor:
Descripción del problema:

Disponemos de una gran variedad de oferta de propiedades de bienes raíces en Cuenca. Utilice nuestra herramienta de búsqueda avanzada para encontrar lo que necesite o anuncie completamente GRATIS sus propiedades de bienes raices en nuestro Portal Inmobiliario Gratuito.

Las mejores fotografías serán publicadas en nuestro muro de fachadas de casas modernas.