ESTRENA CASA EN SAN SEBASTIAN CHALCO.
DETALLE DEL BIEN INMUEBLE
Tipo de inmueble:
Casa en venta
Estado del inmueble:
Segunda mano
Precio:
$ 1.650.000,00 pesos mexicanos
País:
México
Estado:
Estado de México
Ciudad:
Chalco
Zona:
Norte
Barrio:
CALLE INDEPENDENCIA #598 BARRIO SAN SEBASTIAN, CHALCO ESTADO DE MÉXICO 56600
Área de construcción:
108 m2
Nº de habitaciones:
3
Nº de baños:
2
Nº de medio baños:
1
Nº de plantas:
2
Nº de parqueaderos:
1
Comparta en sus redes sociales
Descripción de la propiedad
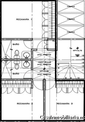
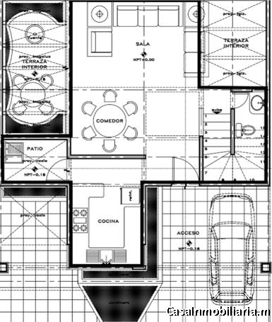
Ubicadas dentro de una privada y en 2 niveles con 108m2 tenemos estas casas en venta, espacios distribuidos de la siguiente manera:

En planta baja tendrás: sala-comedor de buen tamaño, cocina, medio baño, terraza interior y 1 lugar de estacionamiento.
Primer nivel: 3 recámaras y 2 baños completos. La casa tiene azotea y cuenta con muy buena iluminación natural. Rodeada de Avenidas principales como Tláhuac y Avenida Las Torres. Contarás con servicios como gasolineras, tiendas de conveniencia, farmacias, papelerías, laboratorios, gimnasios, escuelas y transporte público cerca. La privada cuenta con áreas verdes y estacionamiento para visitas.
Características Adicionales
✔ Sala de estar
✔ Energía eléctrica
✔ Agua Potable
✔ Alcantarillado
✔ Parqueadero de visitas
✔ Conjunto cerrado
✔ Juegos para niños
✔ Cisterna
Fotografías del Inmueble
ESTRENA CASA EN SAN SEBASTIAN CHALCO.
Enviar mensaje al vendedor
Sus datos personales no se publicarán, únicamente el vendedor los recibirá y se comunicará con usted directamente.
Nombre:
Email:
Teléfono:
Mensaje:
Reportar esta propiedad
¿Esta propiedad está vendida, alquilada, no es un anuncio inmobiliario o existe algún otro tipo de problema con la publicación? Repórtela por favor:
Descripción del problema:

Disponemos de una gran variedad de oferta de propiedades de bienes raíces en Chalco. Utilice nuestra herramienta de búsqueda avanzada para encontrar lo que necesite o anuncie completamente GRATIS sus propiedades de bienes raices en nuestro Portal Inmobiliario Gratuito.

Las mejores fotografías serán publicadas en nuestro muro de fachadas de casas modernas.

Este sitio utiliza cookies para su funcionamiento, al continuar navegando usted lo acepta.
Cerrar este aviso